SHOWROOM
Eng
Esp|
Store
01
03
07
06
02
05
04
08
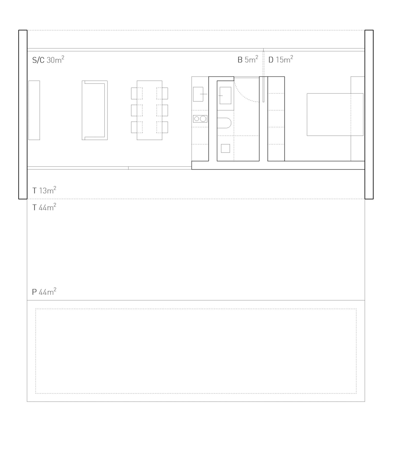
The spatiality of the N70 is extensive, despite its compact size. By maintaining a direct connection with the landscape, the home breaks the barriers between the interior and exterior, and acquires an even greater sense of spaciousness. The home is divided into day and night-time spaces, oriented around an open concept plan in which the cross-ventilated main area contains the kitchen, which connects to the terrace and swimming pool.
However, the swimming pool does not encroach on the bedroom, as the bedroom connects to the opposite garden and thus has a high degree of privacy.
This home also makes for an ideal guest house.
DATA
SUP.M²
75,6
ROOMS
1
BATHS
1







LIVING ROOM/KITCHEN








BEDROOM


BATH


01
03
02
05
04
07
06
08
10
09
12
11
14
13
Have a look at the six finishes available to customize the interiors of your NIU home.
FINISHES
Choose from six different finishes whose textures and materials are in harmony with the warm, contemporary and balanced character of our homes.
Select the same interior design for the living room, kitchen and bedrooms, or select a finish for each room.
The available choices are: aluminum, ivory, sand, graphite, anthracite and onyx.
PLANS
1
2
The details of our homes are all envisioned and designed to offer you the maximum comfort.
FACADE
The facades of our homes are made with Solid Surface, a material that provides strength, durability, ease of repair and low maintenance. This ventilated facade system incorporates an air chamber that allows for natural ventilation between the insulation and the cladding, resulting in greater energy savings.
WINDOWS
One of the most important aspects of the NIU project is our aim to connect the interior with the exterior. We use high-end windows with concealed sashes to provide continuity and scale to our spaces, and to invite the views to become part of the room.
INTEGRATION
The design of our homes integrates all of the architectural elements, such as the distribution of furniture, lighting, fixtures, fittings and appliances, in such a way that everything is hidden and unified, which makes cleaning and maintenance all that much easier.
HOME AUTOMATION
All of the systems in our homes can be controlled by means of home automation, which allows you to control your air conditioning, security or program different lighting and solar protection configurations. The design also considers circadian lighting, which can greatly benefit your quality of life.
BOOKING
If you are interested in the N70, fill out the form below and we will contact you as soon as possible.
