SHOWROOM
Eng
Esp|
Store
01
02
02
04
03
06
05
07
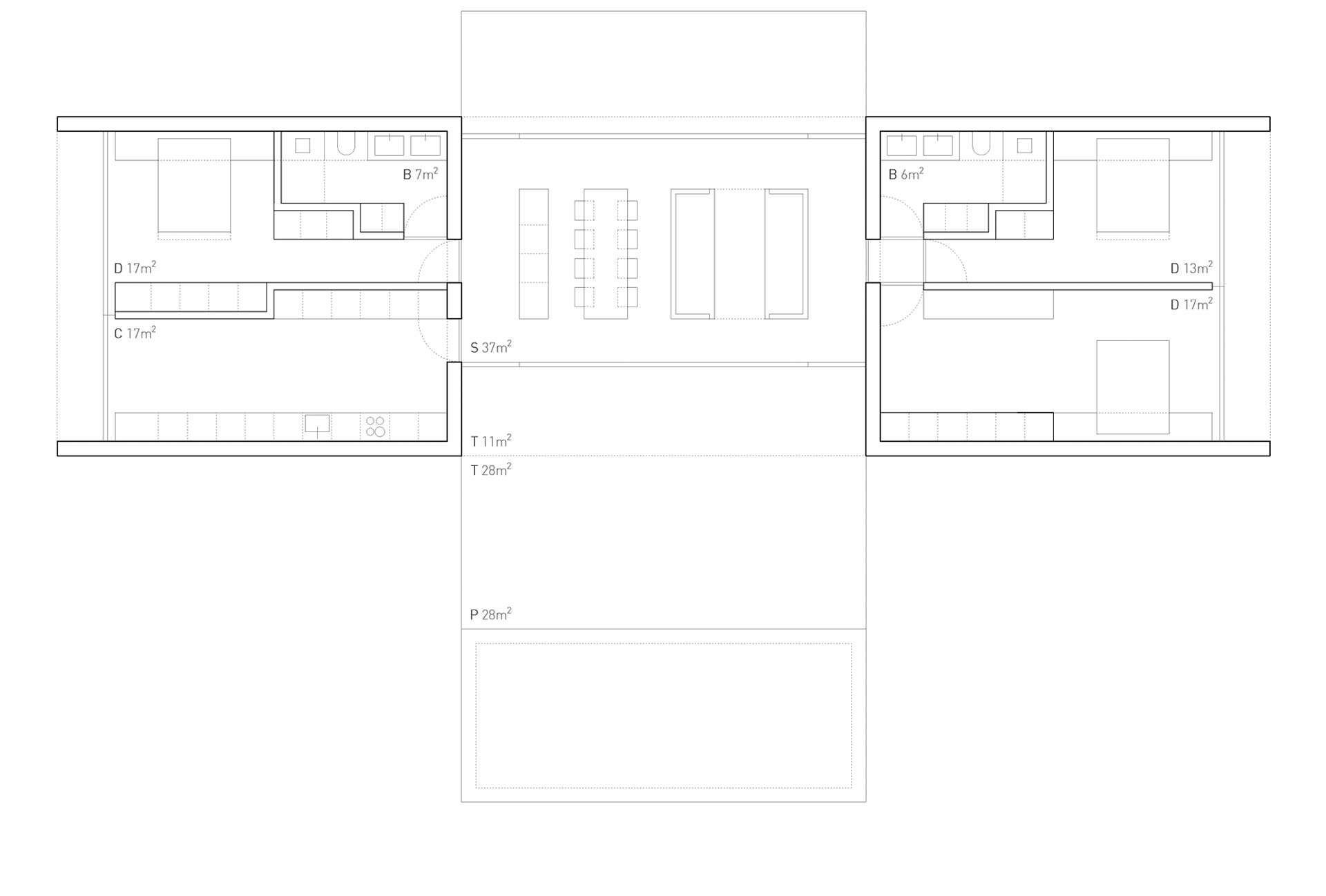
In the N160, the surrounding environment is invited to permeate the central space of the living-dining area through the immense glass panes that line either side of the space, giving the home an incredible feeling of spaciousness. At the same time, this main space, located at the center of the home, organizes the remaining rooms, minimizing the spaces intended for circulation.
These rooms give onto the garden independently of the main area, and thus the uses and functioning of the house are divided and improved. For example, the kitchen is closed and thus independent from the main area. The N160 is a three-bedroom home: there is a master bedroom with an en-suite bathroom and two other bedrooms with a shared bath; the smaller bedroom can be transformed into an office.
DATA
SUP.M²
150,5
ROOMS
3
BATHS
2





LIVING ROOM





KITCHEN
BEDROOM


BATH


01
02
03
05
04
07
06
08
09
11
10
13
12
Have a look at the six finishes available to customize the interiors of your NIU home.
FINISHES
Choose from six different finishes whose textures and materials are in harmony with the warm, contemporary and balanced character of our homes.
Select the same interior design for the living room, kitchen and bedrooms, or select a finish for each room.
The available choices are: aluminum, ivory, sand, graphite, anthracite and onyx.
PLANS
1
2
The details of our homes are all envisioned and designed to offer you the maximum comfort.
FACADE
The facades of our homes are made with Solid Surface, a material that provides strength, durability, ease of repair and low maintenance. This ventilated facade system incorporates an air chamber that allows for natural ventilation between the insulation and the cladding, resulting in greater energy savings.
WINDOWS
One of the most important aspects of the NIU project is our aim to connect the interior with the exterior. We use high-end windows with concealed sashes to provide continuity and scale to our spaces, and to invite the views to become part of the room.
INTEGRATION
The design of our homes integrates all of the architectural elements, such as the distribution of furniture, lighting, fixtures, fittings and appliances, in such a way that everything is hidden and unified, which makes cleaning and maintenance all that much easier.
HOME AUTOMATION
All of the systems in our homes can be controlled by means of home automation, which allows you to control your air conditioning, security or program different lighting and solar protection configurations. The design also considers circadian lighting, which can greatly benefit your quality of life.
BOOKING
If you are interested in the N160, fill out the form below and we will contact you as soon as possible.
